Make an Enquiry
Request Viewing

Under Offer

22 South Street,
Chichester,
West Sussex

Back to Results

Retail, Food and Beverage

486 - 781 Sq Ft (45.15 - 72.55 Sq M)

1 of 10
Download Marketing Details
Download EPC
Download Floor Plans
Virtual Tour
Features
  • Central position close to public car parks, bus and rail stations
  • Chichester is an affluent and thriving retail centre
  • Storage - 233 sq ft
  • New FRI lease available
  • Rent £22,000 pax
  • No VAT
  • Nearby occupiers include Jo Malone, White Stuff, Harris & Hoole Coffee Shop, Sweaty Betty and Tesco Express

Location

Chichester is an attractive cathedral city, and the county town of West Sussex. The property is situated on the western side of South Street, which is a prominent shopping destination within Chichester City Centre.

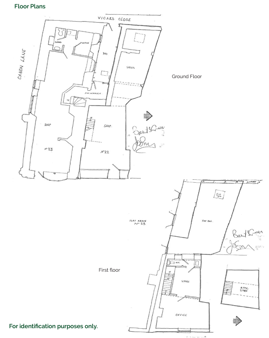
Description

The property comprises a Grade II Listed building arranged as a self-contained retail premises over ground and first floors. The ground floor provides open plan retail space. The first floor provides storage and a WC. There also some attic space.

Accommodation

We have measured and calculate the accommodation to have the following NIA:

Description Sq Ft Sq M
Sales Area 486 45.15
First Floor 233 21.65
Attic 62 5.76

Energy Performance Rating

We understand the property has an EPC rating of C (57).

Planning

A new Use Classes Order (UCO) came into effect on 1st September 2020. Under the new UCO a new Use Class E was introduced to cover commercial, business and service uses. Use Class E encompasses A1, A2, A3, B1 and some D1 and D2 uses under the former UCO. We therefore understand that the premises benefit from Class E 'Commercial Business and Service' use within the Use Classes Order 2020.

Taxation

Rateable Value (2023): £22,500
Rateable Value (Scheduled for Implementation from 1st April 2026): £19,000

Occupiers will pay approximately 50% of this per annum (on sub £50,001 Rateable Values) and approximately 55% on Ratable Values above.

Interested parties should make their own enquiries to satisfy themselves of their business rates liability: https://www.gov.uk/find-business-rates.

Terms

The property is available to let by way of a new full repairing and insuring lease for a term to be agreed at a commencing rent of £22,000 per annum exclusive.

VAT

We understand that the property is not elected for VAT.

Legal Fees

Each party to bear their own legal costs incurred.

Lizzie Cottrell

02392 629006 Email

Sebastian Martin

07800 562509 Email

Flude Property Consultants for themselves and for the vendors or lessors of this property whose agents they are give notice that: i) these particulars are set out in good faith and are believed to be correct but their accuracy cannot be guaranteed and they do not form any part of any contract; ii) no person in the employment of Flude Property Consultants has any authority to make or give any representation or warranty whatsoever in relation to this property.

Please note that whilst we endeavour to confirm the prevailing approved planning use for properties we market, we can offer no guarantees in this regard. Planning information is stated to the best of our knowledge. Interested parties are advised to make their own enquiries to satisfy themselves in respect of planning issues.

We advise interested parties to make their own enquiries to the local authority to verify the above and the level of business rates payable in view of possible transitional arrangements and any reliefs.