Make an Enquiry
Request Viewing

Under Offer

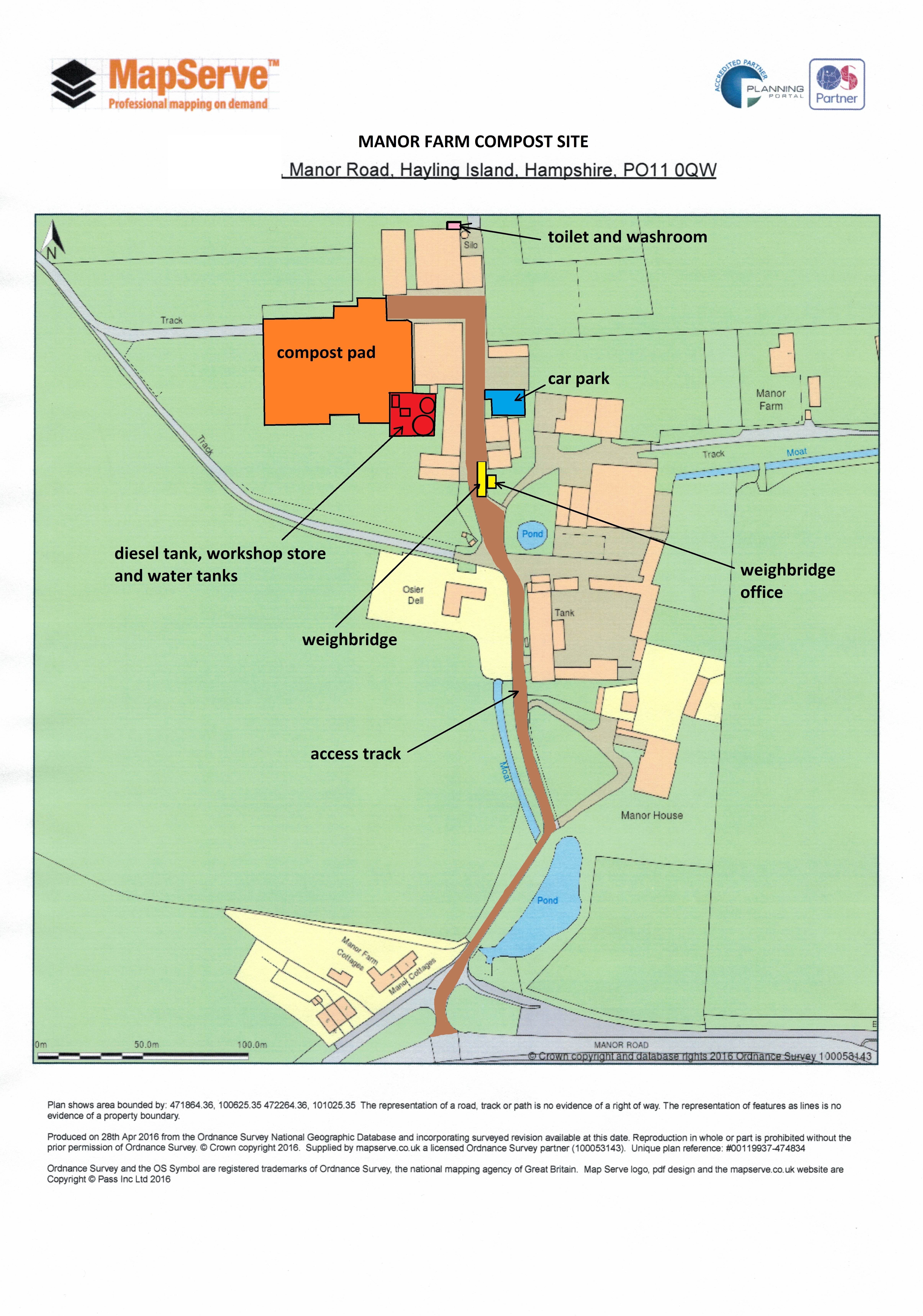
Secure Compound,
Manor Farm,
Manor Road ,
Hayling Island,
Hampshire,
PO11

Back to Results

Industrial and Warehouse

1,000 - 2,400 Sq M (10,764 - 25,833.6 Sq Ft)

1 of 10
Download Marketing Details
Download Floor Plans
Features
  • Well located along the A3023
  • On site parking
  • Benefits from good access and has be used by articulated vehicles daily
  • The yard is reinforced concrete and has electricity and water on site
  • Available as a whole, or split
  • New FRI lease available
  • Rent on application

Location

Hayling Island is an island off the south coast, in the borough of Havant in the county of Hampshire, east of Portsmouth.

Manor Farm is situated along the A3023, and lies about 4 miles to the south of Havant town centre, and 2.4 miles north of Hayling Island town centre. Lidl is 0.2 miles from the farm.

Description

The site comprises a secure regular shaped yard, which we understand totals approximately 2,400 sq m, which can either be split or taken as a whole.

The yard benefits from good access and has be used by articulated vehicles daily. The whole area is reinforced concrete and has electricity and water on site.

Energy Performance Rating

Not applicable.

Planning

Interested parties should make their own planning enquiries and satisfy themselves in this regard.

Taxation

Rateable Value (2023): £13,250.

Terms

The accommodation is available to let by way of a new full repairing and insuring lease for a term to be agreed. Rent on application.

Opening hours for the site are Monday to Friday 8am-7pm, Saturday 8am-12:30pm and closed on Sundays.

VAT

Rents and prices are quoted exclusive of, but may be subject to VAT.

Legal Fees

Each party to bear their own legal costs incurred.

Sebastian Martin

07800 562509 Email

Flude Property Consultants for themselves and for the vendors or lessors of this property whose agents they are give notice that: i) these particulars are set out in good faith and are believed to be correct but their accuracy cannot be guaranteed and they do not form any part of any contract; ii) no person in the employment of Flude Property Consultants has any authority to make or give any representation or warranty whatsoever in relation to this property.

Please note that whilst we endeavour to confirm the prevailing approved planning use for properties we market, we can offer no guarantees in this regard. Planning information is stated to the best of our knowledge. Interested parties are advised to make their own enquiries to satisfy themselves in respect of planning issues.

We advise interested parties to make their own enquiries to the local authority to verify the above and the level of business rates payable in view of possible transitional arrangements and any reliefs.