Make an Enquiry
Request Viewing

To Let

45 Church Road,
Hove BN3 2BE

Back to Results

Offices

728 - 5,879 Sq Ft (67.63 - 546.16 Sq M)

1 of 8
Download Marketing Details
Download Floor Plans
Download Floor Plans
Download Floor Plans
Features
  • Popular central Hove location
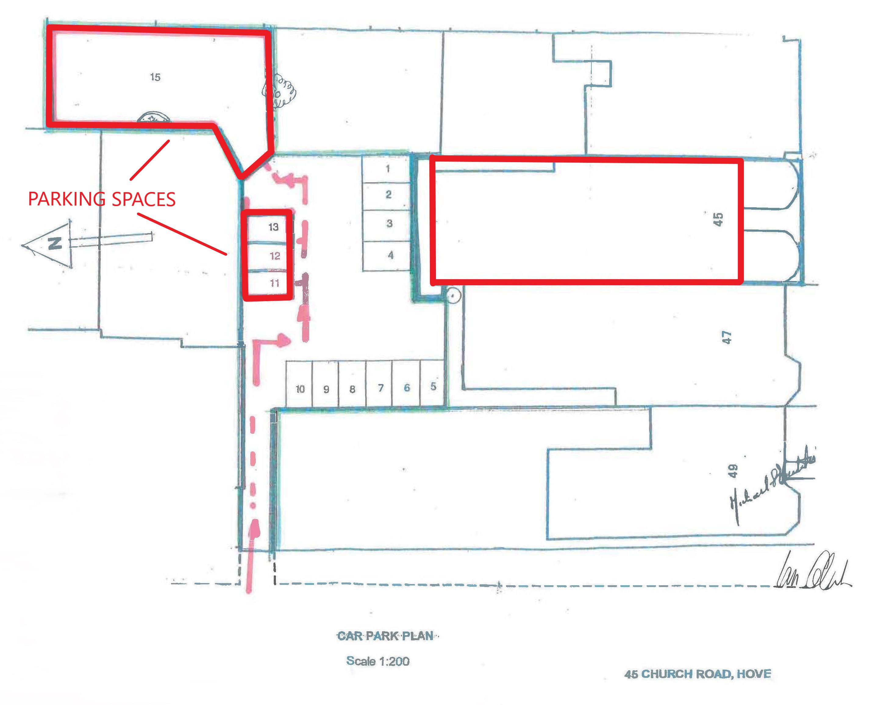
  • On site parking for approx. 8 cars
  • Attractive period building.
  • Self contained accommodation with own front door on to Church Road and rear access into the car park.
  • Suit office and other class E uses

Location

The property is situated in central Hove on the north side of Church Road towards its eastern end, close to Palmeira Square, a few minutes walk from the Sussex County Cricket Ground. Numerous bus routes pass along Church Road and Hove railway station is within 15 minutes' walk.

Church Road is a popular retail street in central Hove, with a large number of cafes, bars and restaurants.

Description

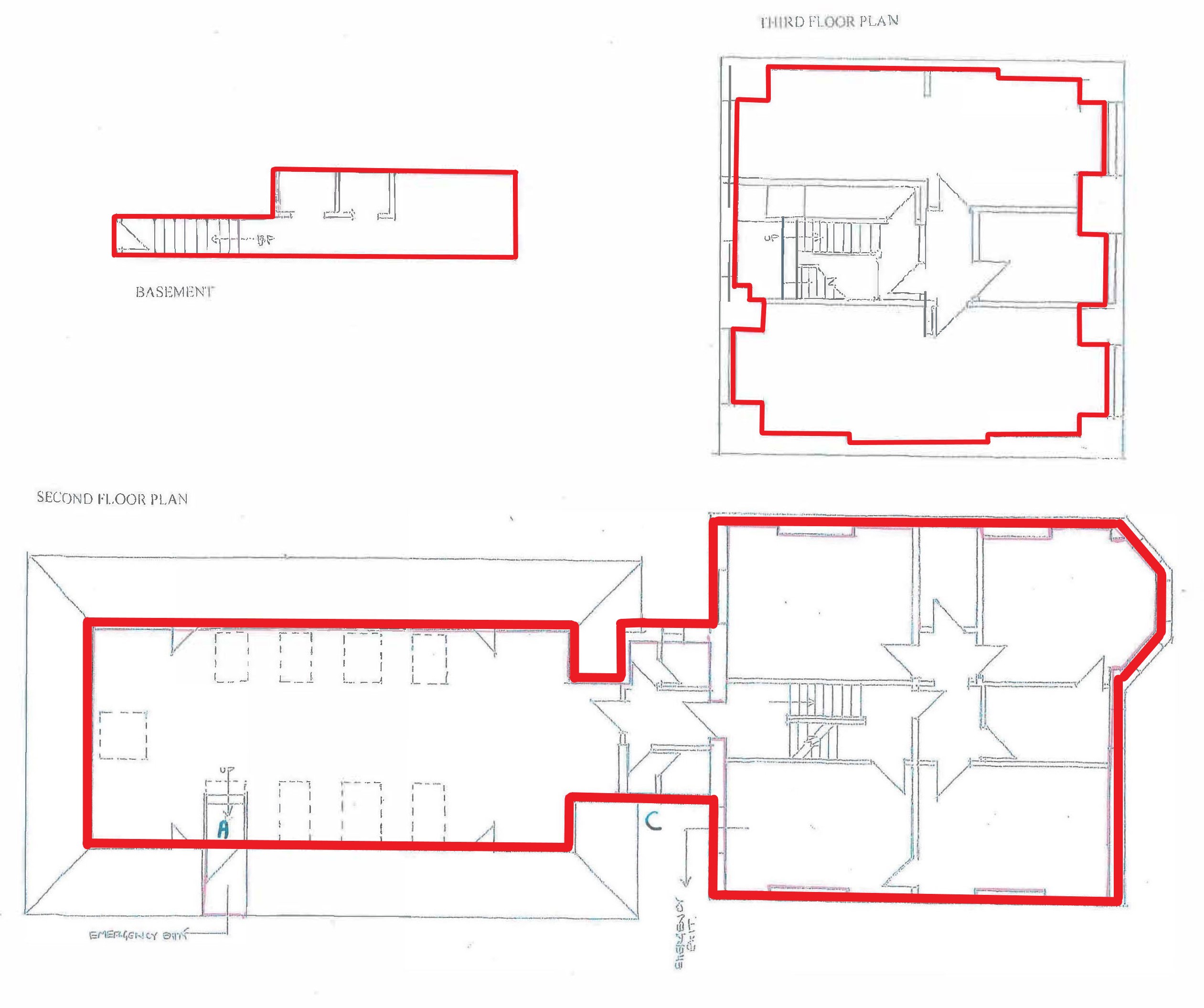
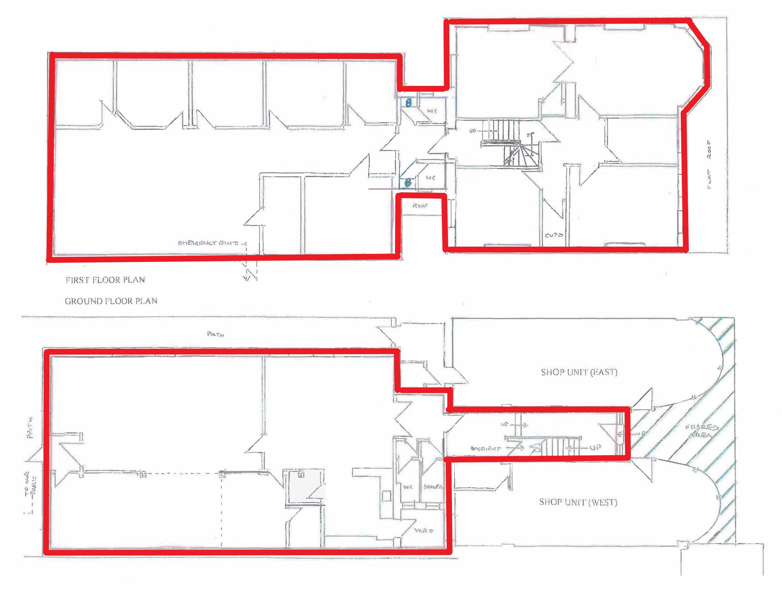
The property comprises the rear part of the ground floor and all of the upper floors to this mid terraced period Victorian property. A parking area is allocated to the accommodation to the rear of the building for approximately 7 or 8 cars.

Accommodation

Description Sq Ft Sq M
Ground Floor 1336 124.11
First Floor 2153 200.01
Second Floor 1662 154.4
Third Floor 728 67.63

Energy Performance Rating

We understand the property has an EPC rating of D-78.

Planning

We understand that the premises benefit from Class E 'Commercial Business and Service' use within the Use Classes Order 2020. Interested parties should make their own planning enquiries and satisfy themselves in this regard.

Taxation

Each room within the building is separately assessed for rating purposes currently.

Terms

The property is available to let on a new full repairing and insuring lease for a term to be agreed at a commencing rent of £18.50 per sq ft.

Consideration may be given to splitting the accommodation on a floor by floor basis.

VAT

Rents and prices are quoted exclusive of, but may be subject to VAT.

Legal Fees

Each party to bear their own legal costs incurred.

Nick Martin

01273 740381 Email

Ed Deslandes

07854883927 Email

Flude Property Consultants for themselves and for the vendors or lessors of this property whose agents they are give notice that: i) these particulars are set out in good faith and are believed to be correct but their accuracy cannot be guaranteed and they do not form any part of any contract; ii) no person in the employment of Flude Property Consultants has any authority to make or give any representation or warranty whatsoever in relation to this property.

Please note that whilst we endeavour to confirm the prevailing approved planning use for properties we market, we can offer no guarantees in this regard. Planning information is stated to the best of our knowledge. Interested parties are advised to make their own enquiries to satisfy themselves in respect of planning issues.

We advise interested parties to make their own enquiries to the local authority to verify the above and the level of business rates payable in view of possible transitional arrangements and any reliefs.