Make an Enquiry
Request Viewing

Under Offer

59/61,
Lyndhurst Road,
Worthing,
BN11 2DB

Back to Results

Offices, Development, Investment, Retail, Food and Beverage

1,173 Sq Ft (108.97 Sq M)

1 of 10
Download Marketing Details
Download Floor Plans
Download Floor Plans
Download Floor Plans
Download Floor Plans
Features
  • Located close to Worthing Hospital and local amenities such as Waitrose
  • Within walking distance of Worthing Station and Worthing town centre
  • Three parking spaces with the building but plentiful public and street parking nearby
  • Close to the amenities of Beach House Park and within 10 minutes for Worthing seafront
  • Of interest to Owners Occupiers and Developers
  • Existing E Class premises
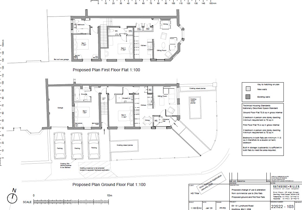
  • Planning for 2 x Two bedroom Flats
  • No CIL payment
  • Total GIA 1,609 sqft (149.55 sqm)
  • Price £315,000 for the property with vacant possession

Location

Worthing is the largest town in west Sussex with a population of 111,400 (population census 2021).

The town has excellent road communications, being situated on the A27 dual-carriageway which runs east to Brighton and west to Portsmouth/Southampton.

The property occupies a prominent corner position in the centre of Worthing, on the northern side of Lyndhurst Road to the west of its junction with Park Road. Worthing Hospital lies about 100 yards to the east.

Description

The property comprises an end-of-terrace period building, arranged over two storeys. Elevations appear to be in solid brick, which have been rendered and painted, beneath a pitched and concrete-tiled roof.

Internally, the property has been divided horizontally to form two self-contained commercial interests; being a lock-up shop / office to the ground floor, and an office on the first floor.

Outside is a garage to the western side of the building, which can be accessed from the ground floor, together with three off-road car parking spaces.

Accommodation

The total Gross Internal Area (GIA) for the property is:

Ground Floor - 802 sqft (74.55 sqm)
First Floor - 807 sqft (75 sqm)
Total GIA - 1,609 (149.55 sqm)


Energy Performance Rating

Further information on request.

Planning

Existing Use
A new Use Classes Order (UCO) came into effect on 1st September 2020. Under the new UCO a new Use Class E was introduced to cover commercial, business and service uses. Use Class E encompasses A1, A2, A3, B1 and some D1 and D2 uses under the former UCO. We therefore understand that the premises benefit from Class E 'Commercial Business and Service' use within the Use Classes Order 2020.

Proposed Use
The premises also benefit from Prior Approval for the proposed change of use from Office/Commercial to two residential flats under NOTICE/0013/25.

This development is NOT liable for Community Infrastructure Levy (CIL) and therefore no CIL is payable.

Please note that whilst we endeavour to confirm the prevailing approved planning use for properties we market we can offer no guarantees in this regard. Planning information is stated to the best of our knowledge. Interested parties are advised to make their own enquiries to satisfy themselves in respect of planning issues.

Taxation

Rateable Value (2023): 59 - £6,700 / 61 - £6,000
Rateable Value (Draft - Scheduled for Implementation from 1st April 2026): 59 - £7,800 / 61 - £7,000
Occupiers will pay approximately 50% of this per annum (on sub £50,001 Rateable Values) and approximately 55% on Ratable Values above.

Interested parties should make their own enquiries to satisfy themselves of their business rates liability: https://www.gov.uk/find-business-rates.

Terms

We have been instructed to market the freehold interest with vacant possession at a guide price of £315,000 subject to contract.

VAT

We understand that the property is not elected for VAT.

Legal Fees

Each party to bear their own legal costs incurred.

Anti-Money Laundering Regulations 2017

In accordance with current Government legislation, we are legally required to conduct Anti-Money Laundering (AML) checks on all prospective purchasers or tenants where the transaction involves a capital value of €15,000 (EUR) or more, or a rental value of €10,000 (EUR) per calendar month or greater.

This process includes verifying identity, as well as confirming the source and availability of funds. Please note that we must obtain and record this information before any transaction can be formalised or contracts exchanged.

Mark Minchell

01243 929136 Email

Noah Minchell

01243 217302 Email

Flude Property Consultants for themselves and for the vendors or lessors of this property whose agents they are give notice that: i) these particulars are set out in good faith and are believed to be correct but their accuracy cannot be guaranteed and they do not form any part of any contract; ii) no person in the employment of Flude Property Consultants has any authority to make or give any representation or warranty whatsoever in relation to this property.

Please note that whilst we endeavour to confirm the prevailing approved planning use for properties we market, we can offer no guarantees in this regard. Planning information is stated to the best of our knowledge. Interested parties are advised to make their own enquiries to satisfy themselves in respect of planning issues.

We advise interested parties to make their own enquiries to the local authority to verify the above and the level of business rates payable in view of possible transitional arrangements and any reliefs.